新築一戸建て
碧南市入船町第7 3号棟
建築確認番号:第HPA25-09249-1号物件No: 002246
- 全居室収納スペース付き
- 広々バルコニー
- 大浜小学校・南中学校
| 価格 |
2,290万円 (税込) ローンシミュレーション(外部サイト) |
||
|---|---|---|---|
| 所在地 | 碧南市入船町3-59 | ||
| 交通 | 名鉄三河線「碧南」駅徒歩20分 | ||
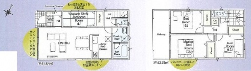
| 敷地面積 | 167.56㎡(公簿) | 延床面積 | 95.58㎡(公簿) |
| 間取り | 4LDK | 駐車場 | 2 |
| 地目 | 宅地 | 都市計画 | 市街化区域 |
| 用途地域 | 第一種中高層住居専用地域 | 土地権利 | 所有権 |
| 取引態様 | 媒介 | 築年 | 2025.11 |
| 建ぺい率 | 60% | 容積率 | 150% |
| 階数 | 2 | 学区 | 大浜小学校・南中学校 |
| 構造 | 木造二階建 | ||
| 接道 | 西側5.97m公道 | ||
| 備考 | 建築基準法第22条指定区域・宅地造成工事規制区域 | ||
| 設備 | 中部電力・公共水道・公共下水・個別プロパンガス | ||
| 現況 | 完成 | 引渡時期 | 相談 |
| その他 | 値下げ物件 | ||
この物件へのお問い合わせ


