新築一戸建て
碧南市湖西町第2 2号棟
建築確認番号:第HPA-25-07743-1号物件No: 002282
- 庭スペースあり
- 敷地面積50坪超
- 西端小学校・西端中学校
| 価格 |
2,490万円 (税込) ローンシミュレーション(外部サイト) |
||
|---|---|---|---|
| 所在地 | 碧南市湖西町3丁目46-1 | ||
| 交通 | 名鉄三河線「北新川」駅徒歩30分 | ||
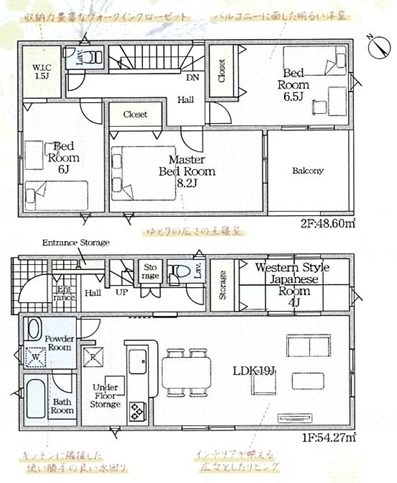
| 敷地面積 | 168.61㎡ (51坪)(公簿) | 延床面積 | 102.87㎡ (31.11坪)(公簿) |
| 間取り | 4LDK | 駐車場 | 2 |
| 地目 | 宅地 | 都市計画 | 市街化区域 |
| 用途地域 | 第一種住居地域 | 土地権利 | 所有権 |
| 取引態様 | 媒介 | 築年 | 2025.10 |
| 建ぺい率 | 60% | 容積率 | 160% |
| 階数 | 2 | 学区 | 西端小学校・西端中学校 |
| 構造 | 木造二階建 | ||
| 接道 | 西側3.04~3.2m公道 | ||
| 備考 | 建築基準法22条指定区域 | ||
| 設備 | 中部電力・公共水道・公共下水・個別プロパンガス | ||
| 現況 | 完成 | 引渡時期 | 相談 |
| その他 | 庭あり、値下げ物件、土地面積50坪以上 | ||
この物件へのお問い合わせ


