新築一戸建て
碧南市松江町第2 3号棟
建築確認番号:第HPA-25-09009-1号物件No: 002301
- カースペース2台(車種によります)
- 南向きの広々バルコニー
- 新川小学校・新川中学校
| 価格 |
2,690万円 (税込) ローンシミュレーション(外部サイト) |
||
|---|---|---|---|
| 所在地 | 碧南市松江町3丁目91 | ||
| 交通 | 名鉄三河線「北新川」駅徒歩13分 | ||
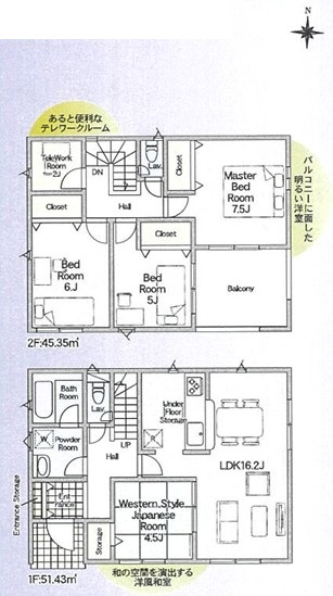
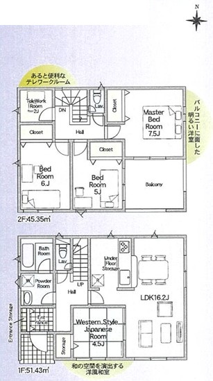
| 敷地面積 | 237.54㎡ (71.85坪)(公簿) | 延床面積 | 96.78㎡ (29.27坪)(公簿) |
| 間取り | 4LDK | 駐車場 | 2 |
| 地目 | 宅地 | 都市計画 | 市街化区域 |
| 用途地域 | 準工業地域 | 土地権利 | 所有権 |
| 取引態様 | 媒介 | 築年 | 2025.12 |
| 建ぺい率 | 60% | 容積率 | 200% |
| 階数 | 2 | 学区 | 新川小学校・新川中学校 |
| 構造 | 木造二階建 | ||
| 接道 | 南側7.06~7.17m公道 | ||
| 設備 | 中部電力・公共水道・公共下水・個別プロパンガス | ||
| 現況 | 完成 | 引渡時期 | 相談 |
| その他 | 値下げ物件 | ||
この物件へのお問い合わせ


