新築一戸建て 西尾市平坂町 第9 3号棟
建築確認番号:第HPA-25-09908-1号物件No: 002259
- 人気の対面式キッチン
- 全居室収納付き
- 平坂小学校・平坂中学校
| 価格 |
2,390万円 (税込) ローンシミュレーション(外部サイト) |
||
|---|---|---|---|
| 所在地 | 西尾市平坂町午築地31 | ||
| 交通 |
名鉄西尾線「西尾」駅バス20分 六万石くるりんバス「平坂午築地」停徒歩3分 |
||
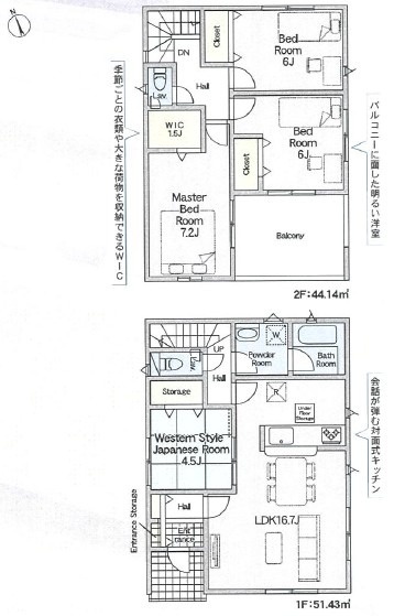
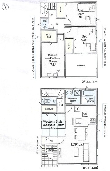
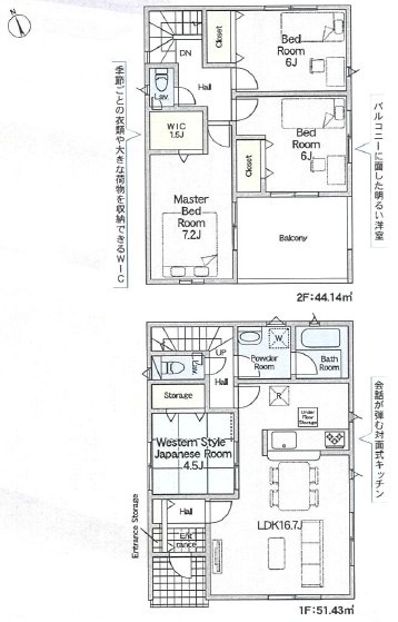
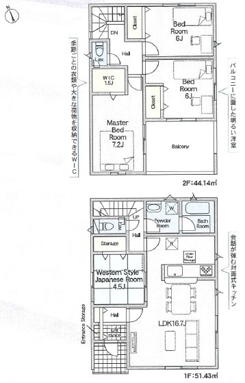
| 敷地面積 | 110.88㎡(公簿) | 延床面積 | 95.57㎡(公簿) |
| 間取り | 4LDK | 駐車場 | 2 |
| 地目 | 宅地 | 都市計画 | 市街化区域 |
| 用途地域 | 近隣商業地域 | 土地権利 | 所有権 |
| 取引態様 | 媒介 | 築年 | 2026.1 |
| 建ぺい率 | 80% | 容積率 | 200% |
| 階数 | 2 | 学区 | 平坂小学校 ・平坂中学校 |
| 構造 | 木造二階建 | ||
| 接道 | 、南側4.1~4.2m公道 | ||
| 備考 | 準防火地域・宅地造成工事規制区域 | ||
| 設備 | 中部電力・公共水道・公共下水・個別プロパンガス | ||
| 現況 | 建築中 | 引渡時期 | 相談 |
この物件へのお問い合わせ

