新築一戸建て
西尾市一色町松木島第8 1号棟
建築確認番号:第HPA-25-13079-1号物件No: 002300
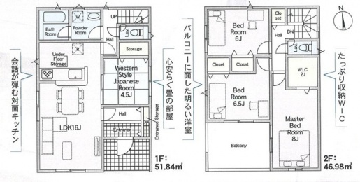
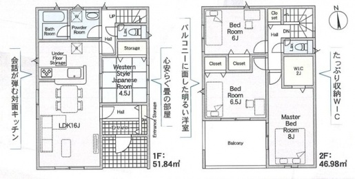
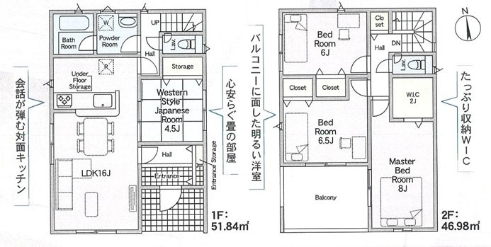
- 人気の対面式キッチン
- 主寝室8帖
- 全居室収納付き
- 一色東部小学校・一色中学校
| 価格 |
1,890万円 (税込) ローンシミュレーション(外部サイト) |
||
|---|---|---|---|
| 所在地 | 西尾市一色町松木島自分山20-2、21-2 | ||
| 交通 | 名鉄西尾線「吉良吉田」駅バス7分、ふれんどバス「松木島」停徒歩6分 | ||
| 敷地面積 | 159.61㎡(公簿) | 延床面積 | 98.82㎡(公簿) |
| 間取り | 4LDK | 駐車場 | 2 |
| 地目 | 宅地 | 都市計画 | 市街化区域 |
| 用途地域 | 第一種中高層住居専用地域 | 土地権利 | 所有権 |
| 取引態様 | 媒介 | 築年 | 2026.1 |
| 建ぺい率 | 60% | 容積率 | 150% |
| 階数 | 2 | 学区 | 一色東部小学校 ・一色中学校 |
| 構造 | 木造二階建 | ||
| 接道 | 南側4.4~4.6m公道 、西側9.8m公道 | ||
| 設備 | 中部電力・個別プロパンガス・公共水道・公共下水 | ||
| 現況 | 完成 | 引渡時期 | 相談 |
| その他 | 値下げ物件 | ||
この物件へのお問い合わせ


