新築一戸建て 西尾市西幡豆町1期 1号棟
建築確認番号:第KS125-0410-52456号物件No: 002214
- 長期優良住宅
- 小学校、駅、スーパー棟近く♪
- 幡豆小学校・幡豆中学校
| 価格 |
2,090万円 (税込) ローンシミュレーション(外部サイト) |
||
|---|---|---|---|
| 所在地 | 西尾市西幡豆町中屋敷3-1他 | ||
| 交通 | 名鉄蒲郡線「西幡豆」駅徒歩4分 | ||
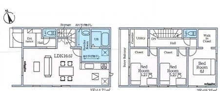
| 敷地面積 | 186.09㎡(公簿) | 延床面積 | 94.06㎡(公簿) |
| 間取り | 3LDK+WIC | 駐車場 | 3 |
| 地目 | 宅地 | 都市計画 | 市街化区域 |
| 用途地域 | 第一種住居地域 | 土地権利 | 所有権 |
| 取引態様 | 媒介 | 築年 | 2025.9 |
| 建ぺい率 | 60% | 容積率 | 200% |
| 階数 | 2 | 学区 | 幡豆小学校 ・幡豆中学校 |
| 構造 | 木造二階建 | ||
| 接道 | 西側5.6m公道 | ||
| 設備 | 公営水道・下水・個別プロパン・中部電力 | ||
| 現況 | 完成 | 引渡時期 | 相談 |
| その他 | 値下げ物件、土地面積50坪以上 | ||
この物件へのお問い合わせ


