新築一戸建て 西尾中畑小 3号棟
建築確認番号:第R06確認建築CI東海/A70560号物件No: 002323
- タマホーム施工
- 中畑小学校・平坂中学校
| 価格 |
3,680万円 (税込) ローンシミュレーション(外部サイト) |
||
|---|---|---|---|
| 所在地 | 西尾市田貫一丁目44、45-1、45-2 | ||
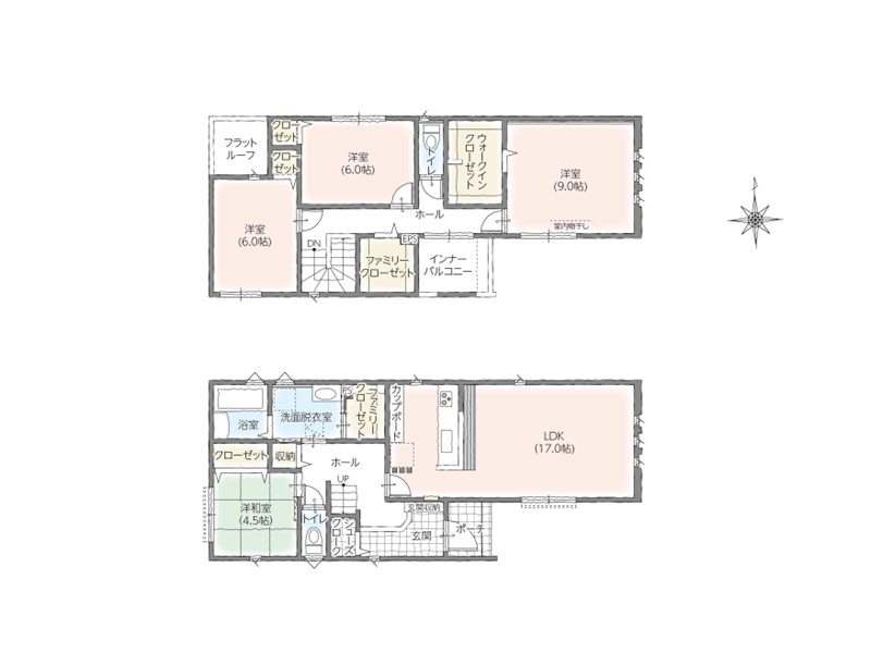
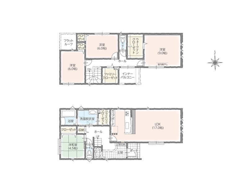
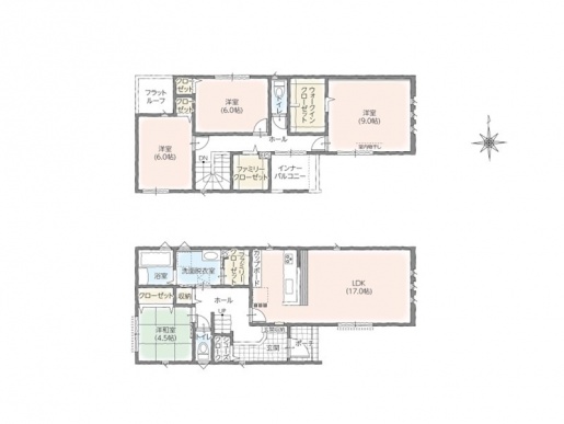
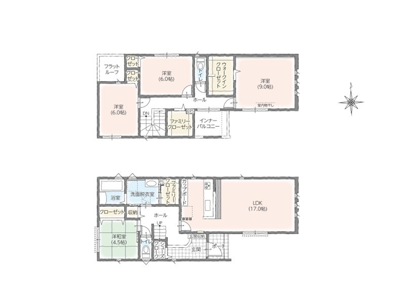
| 敷地面積 | 139.01㎡(公簿) | 延床面積 | 117.58㎡(公簿) |
| 間取り | 4LDK | 駐車場 | 2 |
| 地目 | 宅地 | 都市計画 | 市街化区域 |
| 用途地域 | 土地権利 | 所有権 | |
| 取引態様 | 媒介 | 築年 | 2025.2 |
| 建ぺい率 | 60% | 容積率 | 150% |
| 階数 | 2 | 学区 | 中畑小学校 ・平坂中学校 |
| 構造 | 木造二階建 | ||
| 接道 | 東側6m公道 | ||
| 設備 | 上下水道・オール電化 | ||
| 現況 | 完成 | 引渡時期 | 相談 |
この物件へのお問い合わせ


