新築一戸建て
西尾市寺津町第7 2号棟
建築確認番号:第HPA-25-13171-1号物件No: 002331
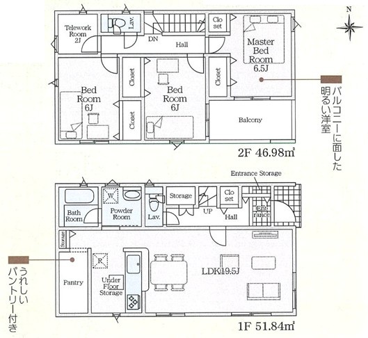
- 会話が弾む対面式キッチン
- 便利なパントリー付き
- 寺津小学校・寺津中学校
| 価格 |
2,290万円 (税込) ローンシミュレーション(外部サイト) |
||
|---|---|---|---|
| 所在地 | 西尾市寺津町亀井68-1 | ||
| 交通 | 名鉄西尾線「福地」駅徒歩44分 | ||
| 敷地面積 | 156.62㎡(公簿) | 延床面積 | 98.82㎡(公簿) |
| 間取り | 3LDK | 駐車場 | 2 |
| 地目 | 宅地 | 都市計画 | 市街化区域 |
| 用途地域 | 第一種住居地域 | 土地権利 | 所有権 |
| 取引態様 | 媒介 | 築年 | 2026.2 |
| 建ぺい率 | 60% | 容積率 | 200% |
| 階数 | 2 | 学区 | 寺津小学校 ・寺津中学校 |
| 構造 | 木造二階建 | ||
| 接道 | 東側7.87~8.09m公道 | ||
| 設備 | 中部電力・公営水道・公共下水・個別プロパンガス | ||
| 現況 | 建築中 | 引渡時期 | 相談 |
この物件へのお問い合わせ

